 
			 
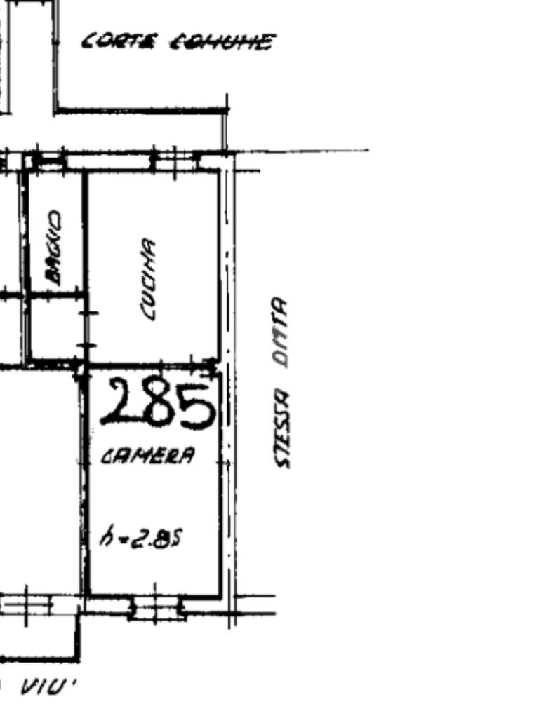
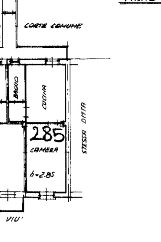
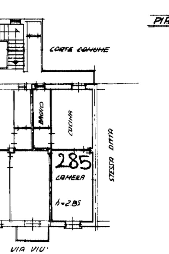
				In zona Lucento, ben servita proponiamo grazioso bilocale situato al secondo piano di una palazzina di tre.
Si trova subito l'ingresso su soggiorno living con cucinotto aperto, segue un'ampia camera da letto.
L'alloggio è ristrutturato, caratterizzato da una doppia esposizione che offre luminosità sia al mattino che al pomeriggio.
Completa la soluzione un bagno finestrato con box doccia ed una cantina.
Ti interessa visionare l'immobile?